Triton Naval Architects
   
 
 
 
 
 
 
 
 
 
 
 
 


services / marine structures / coral sea winch

CORAL SEA MOORING SYSTEM UPGRADE FROM CHAIN TO WIRE

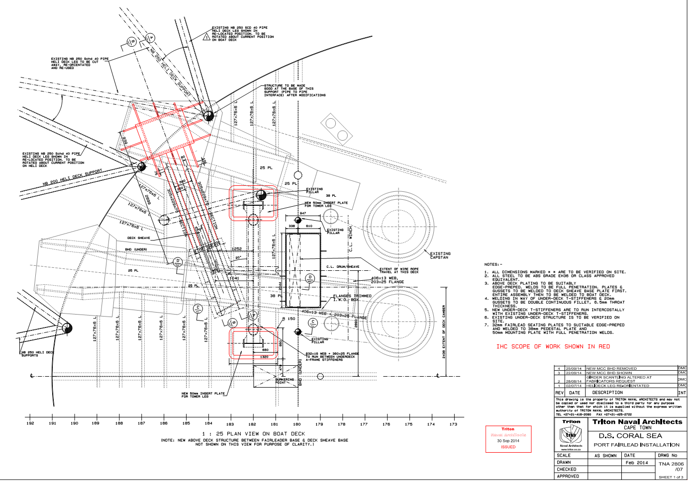
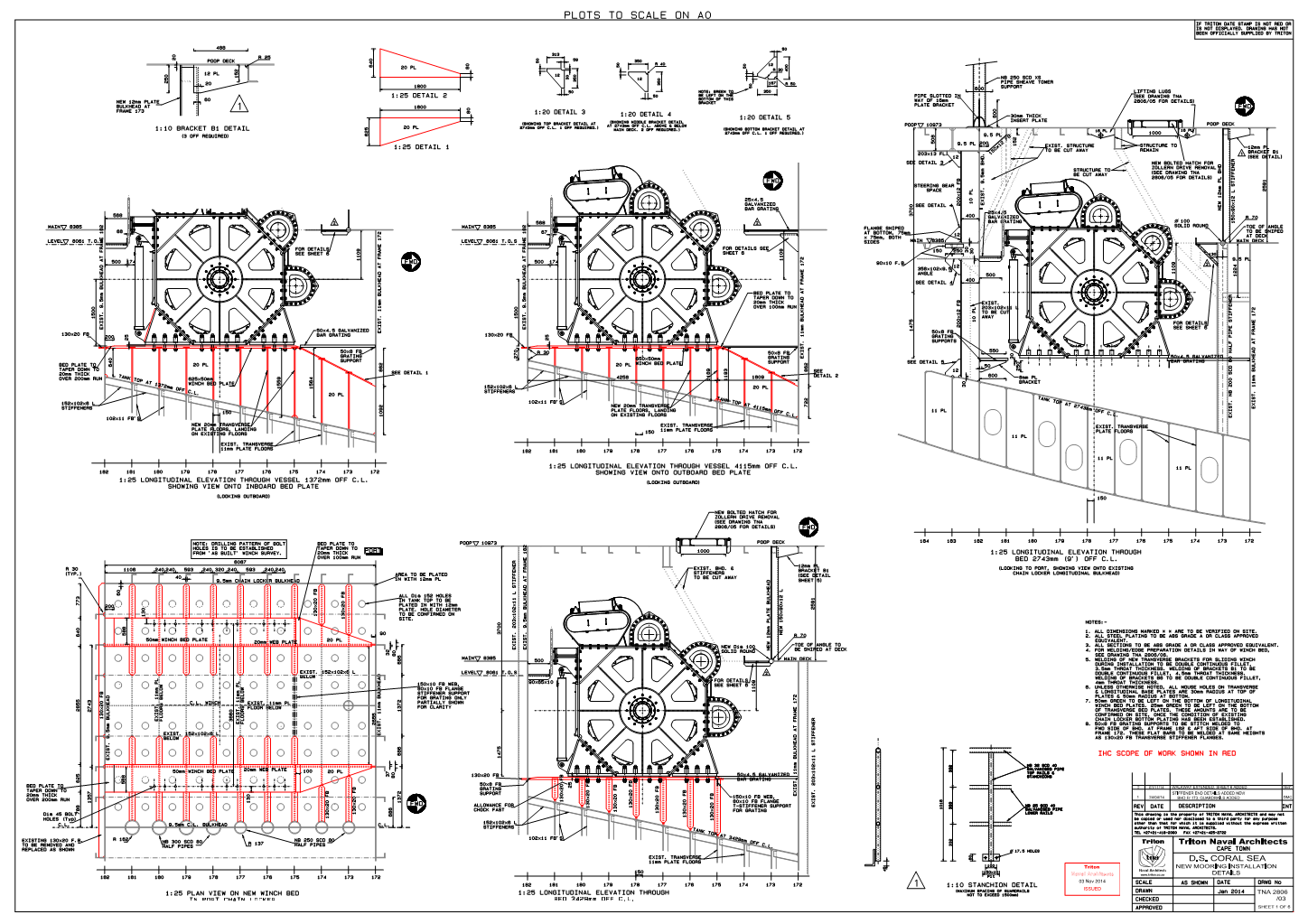
In 2006 Triton were contracted by IHC/MMP to design the structural support modifications to the vessel to accommodate a 52 tonne winch being installed in the Aft Stbd Chain Locker. The chain mooring system was stripped out. The new wire system required a sheave tower to allow suitable fleeting angles, deck bend sheave and high capacity deck fairleader, all of which required significant support.

In 2014 the process was repeated for the Aft Port Mooring System. The winch support structure was analysed as was the entire aft boat deck, as per some images included here.

The data package of 2D drawings were developed for fabrication and Class approval, whilst the structural analysis performed to verify the design and satisfy the controlling authorities.

 




Triton Naval Architects
No. 8 Foregate Square, Harbour Rd
Foreshore, Cape Town, SOUTH AFRICA
Tel: +27 21 418 2090 | Fax: +27 21 425 2722 | Email: triton@triton.co.za

By Triton Naval Architects


 
 

images

     
 

3D Isometric Model of Boat Deck with Deck Bend Sheave Foundation and Fairleader Foundation shown.

 
     
 

Underdeck model showing structure and plate thickness (with corrosion allowance).

 
     
 

Sample Stress Plot.

 
     
 

Sample 2D Fabrication Drawing (click to enlarge).

 
     
 

Sample 2D Fabrication Drawing (click to enlarge).

 
     
 

Sample 2D Fabrication Drawing (click to enlarge).

 
     
 

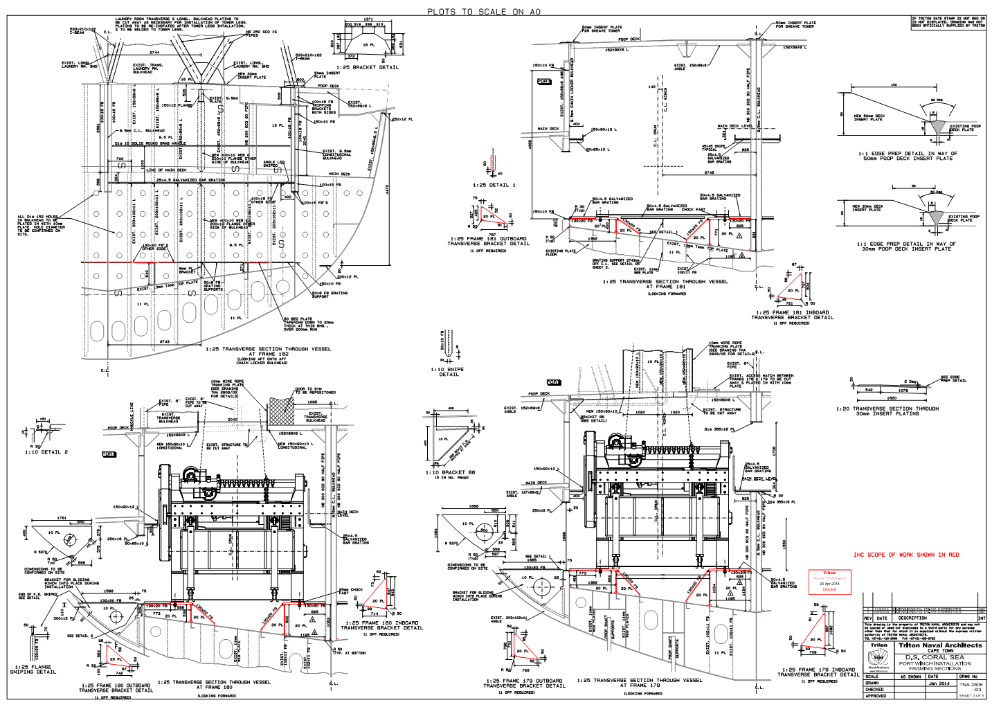
Section and Elevation on Winch and Tower Arrangement (click to enlarge).